Back

Commercial & Residential building

North Macedonia
On going
Architect

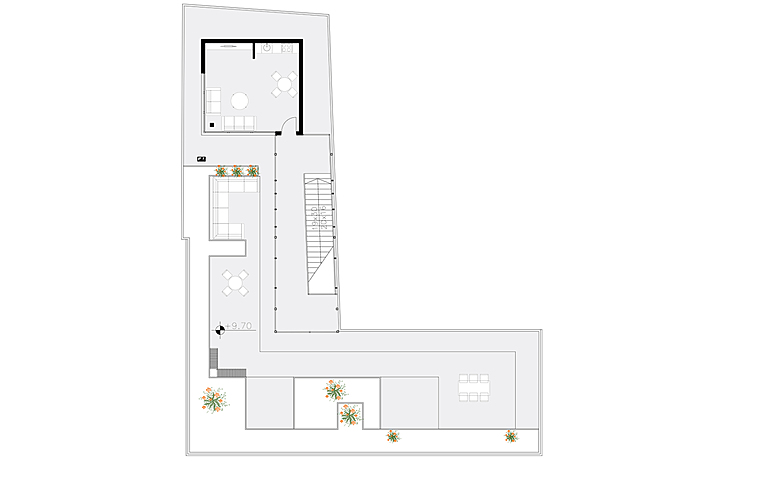
Contemporary building located close to the city center, combining living and commercial spaces in a hybrid building. Ground floor and part of the first floor used as commercial spaces, part of the first floor, the second floor and the rooftop used for living. Due to the limited area of the plot the garden is positioned to the highest level of the building, the rooftop.

Some of the cookies are required for the correct operation of our pages, while others are improving your user experience. We suggest accepting recommended settings, and here you can control and customize them. If you want to know more about how we use cookies, please see our Cookie Policy.